
“서라벌에 절이 별처럼 펼쳐져 있고 탑들이 기러기처럼 늘어서 있다.(寺寺星張 塔塔雁行)”
<삼국유사>가 전한 전성기 서라벌 시내 모습이다. 527년(법흥왕 14) 이차돈의 순교로 공인된 불교가 어느덧 ‘절과 절이 별처럼, 탑과 탑이 기러기 행렬처럼 늘어서 있을 정도’로 성행했던 것이다.
553년(진흥왕 14) 짓기 시작한 황룡사는 본래 사찰(寺)로 조성된 것은 아니었다. <삼국사기>는 “월성의 동쪽에 새 궁궐을 지으려 했는데, 황룡이 나타나는 바람에 사찰(‘황룡사’) 조영으로 계획을 수정했다”(‘신라본기’)고 했다.
그렇게 시작된 황룡사 조영공사는 13년 만인 566년 1차 가람이 마무리됐다. 진흥왕은 8년 뒤(574년) 구리 3만5007근(약 7.6t 추정)과, 도금 1만98푼(약 100냥)을 사용하여 5m에 달하는 불상(장육상)을 조성했다. 이와함께 철 1만 2000근과 황금 1만136푼을 들여 두 보살상을 주조했다. 이들 불상을 모시기 위한 금당도 새롭게 건립했다.

■통일을 염원하며 세운 서라벌의 랜드마크
그러나 이것은 리허설에 불과했다. 643년(선덕여왕 12) 황룡사 경내에서 역사적인 불사가 이어진다.
그것이 황룡사 9층 목탑이다. 탑의 높이만 약 80m에 달했다니 천년고도 서라벌의 랜드마크였을 것이다.
그러나 그 목탑에는 백제의 계속된 침략에 고전했던 신라인의 노심초사와 함께 반드시 통일을 이루겠다는 염원이 녹아있다.
탑이 조성되기 직전인 643년 무렵 신라는 누란의 위기에 빠져있었다. 백제 의자왕(641~660)의 끊임없는 공세에 시달렸고, 급기야 대야성을 비롯한 서쪽 40여개성이 함락되고 만다.(642년)

선덕여왕은 당나라 유학파 승려인 자장(595~658)의 건의를 받아들여 9층 목탑을 완성한다.(645년)
“황룡사에 9층탑을 세우면 이웃나라 침범하는 재앙을 막을 수 있다. 1층은 일본, 2층은 중화, 3층은 오월, 4층은 탁라(탐라), 5층은 응유(백제), 6층은 말갈, 7층은 단국(거란), 8층은 여적(여진), 9층은 예맥을 진압한다.”(<삼국유사> ‘구층탑조’)
지푸라기라도 잡고 싶은 심정이던 선덕여왕은 불법의 힘을 빌려 위기를 탈출하고자 한 것이다.
그러나 신라에는 높이 80m가 넘는 목탑을 세울 기술자가 없었다. 그래서 보물과 비단을 보내 백제의 탑건축가인 아비지를 ‘스카웃’했다. 아비지는 이간 김용춘(생몰년 미상)이 이끄는 200여명의 신라인과 함께 탑을 세우는데 성공했다.

황룡사의 가람형식은 고구려 양식(1탑3금당)을 따랐다. 황룡사의 조성 기획은 신라, 가람형식은 고구려, 기술은 백제 등의 문화가 응측된 삼국 공동의 작품이라 할 수 있다. 목탑은 바닥 면적이 약 150평이고, 기단 한 변의 길이가 22.2m 정도이며 아파트 30층 높이(탑신부 65m, 상륜부 15m 가량)로 추정된다. 당대 서라벌의 모든 건축물 중에서도 군계일학이었을 것이다.
이로써 황룡사는 553년(진흥왕 14)부터 진지왕(576~579)-진평왕(579~632)을 거쳐 645년(선덕여왕 14)까지 93년에 걸친 대역사를 끝내고 신라 천년 사직을 지키는 국찰의 면모를 갖추었다.

아닌게 아니라 신라는 9층탑을 조성한지 불과 23년 만에(668년) 삼국통일을 이룬다. 황룡사와, 그 가운데 눈만 들면 보이는 우뚝 솟은 거대한 목탑은 신라인들의 불안했던 마음을 다잡은 정신적인 지주가 되었던 것이 틀림없다.
<삼국유사> 등은 “신라에는 황룡사 장육상과, 9층목탑, 천사옥대(진평왕이 신선에게서 받았다는 옥허리띠) 등 나라를 수호하는 3가지 보물이 있다”면서 “이 신라의 3보(寶) 덕분에 다른 나라의 침략을 받지 않는다”고 소개했다.
‘신라의 3보’에 황룡사 보물이 두 건이나 포함되어 있었던 것이다.
그러나 황룡사에는 두 보물 외에도 신라를 대표하는 작품들이 많았다. 예컨대 <삼국사기>는 “황룡사 금당 벽에는 (그림의 천재인) 솔거가 그린 ‘늙은 소나무 그림(노송도)’이 있었다”고 소개했다.

“솔거의 소나무는 뿌리와 줄기가 비늘처럼 주름 잡히고 가지와 잎은 서리어 구불구불했다. 너무나 사실적이어서 까마귀, 솔개, 제비, 참새 등이 그림을 보고 벽에 날아들었다가 부딪쳐 미끄러져 떨어지곤 했다.”
다른 보물 중에 ‘범종’이 있었다. <삼국유사>는 “754년(경덕왕 13) 왕비인 삼모부인이 49만7581근(약 108t)의 구리를 시주하여 제작(높이 1장3촌·약 3m)했다”고 전했다. 이 범종은 현존하는 성덕대왕 신종(약 26t)의 4배 정도 된다.
황룡사에는 석가모니의 진신사리가 봉안되어 있었다. <삼국유사>는 “643년(선덕여왕 12) 자장법사가 귀국할 때 가지고 온 사리를 세 곳(황룡사 목탑·양산 통도사·울산 태화사)으로 나누어 봉안했다”고 기록했다.

■불에 탄 신라의 국보
황룡사와 9층 목탑 등은 이후 통일신라와 고려시대를 거치는 동안에도 신앙의 대상으로 여겨졌다.
중국 사신을 맞이하는 등의 국가의 대사가 있을 때에는 왕이 친히 황룡사에 나와 백고좌(百高座)를 열고 법회에 참석하기도 했다.(613·876·887년 등) ‘백고좌’는 사자좌 100개를 만들고 원광법사(541~630?) 같은 고승을 초빙하여 설법을 듣는 대규모 법회이다. 또 임금들이 때때로 황룡사가 주최하는 연등회에 참석하기도 했다.(866·890년)

우여곡절도 겪었다. <삼국사기>는 “황룡사 창건 후 9년이 지난 575년(진흥왕 36) 장륙상이 눈물을 흘려 발꿈치까지 이르렀다”고 기록했다. 그해 가뭄 때문에 고초를 겪었던 백성들의 눈물을 상징하는 것 같다. <삼국유사>는 이것을 진흥왕의 서거(576년)와 연관지어 “장육상의 눈물은 진흥왕이 승하할 조짐이었다”고 해석했다.
목탑은 그 압도적인 높이 때문에 벼락을 맞기도(718·868·953·1035·1095년), 화재가 일어나기도(935년) 했다. 지진 때문에 북쪽으로 탑이 기울기도 했다.(927년) 그 때마다 수리공사가 이뤄졌다.
그러나 1238년(고려 고종 25) 윤 4월 몽골 침략군의 방화로 황룡사와 9층 목탑은 끝장나고 만다.
<삼국유사>는 “1238년 몽골군의 병화로 황룡사의 모든 전당과 9층 목탑, 장육존상까지 모두 소실됐다”고 기록했다.

■9층 목탑을 철근콘크리트로 복원했다면?
이후 황룡사와 9층목탑은 700년 이상 전소된 흔적만 남게 됐다. 그 터에는 민가와 전답 등이 들어섰다.
그러던 황룡사와 9층 목탑이 세인의 관심을 받게 된 기상천외한 사건이 일어난다.
1964년 12월17일 도굴범들이 황룡사 목탑터에 놓여있던 10t 가량의 심초석 덮개돌을 지렛대로 살짝 들어올렸다. 이들은 그 아래 사리공 속에서 각종 장엄구를 들어내고는 아무일 없었다는 듯 덮개돌을 내려놓았다.
도굴사건은 그렇게 2년 가까이 감쪽같이 묻히고 만다. 1년9개월 뒤(1966년 9월5일) 엉뚱한 사건이 터진다. 경주 불국사 석가탑 안에 있던 사리장엄구를 도굴하려다 미수에 그친 범인들이 검거된다.
그런데 여죄를 추궁하는 과정에서 “실은 황룡사 목탑의 사리장엄구도 도굴했다”는 뜻밖의 자백을 받는다. 그때 회수된 도굴품 중에는 훗날 보물로 지정된 ‘황룡사 구층목탑 금동찰주본기’가 포함되어 있다. 이 찰주본기에는 황룡사 목탑 창건 및 중·보수, 수리와 관련된 많은 기록이 음각되어 있다. 그러나 사리병과 사리는 끝내 회수되지 못했다.
1978년 7월 28일 황룡사 9층 목탑터에서 세간의 이목이 집중된 이벤트가 열렸다. 14년전 도굴범들이 지렛대로 살짝 들어올린 10t짜리 방형대석(사각형 모양의 돌) 밑에 묻힌 30t 가량의 대형 심초석을 들어올려 옮기는 행사였다. 발굴조사를 위해 포항제철(포스코)이 사용중이던 100t 크레인까지 동원한 대대적인 이동작전이었다.

그렇게 노출된 심초석 자리의 하부에서 상상밖의 유물이 쏟아져 나왔다. 중국제 백자 항아리와 금동귀고리, 거울, 각종 구슬과 수정장식, 청동그릇 등 3,000여점의 유물이 수습됐다. 이것은 645년 선덕여왕이 목탑을 완성하면서 뿌려둔 공양물이 분명하다. 황룡사와 관련해서 또 한 편의 기막힌 일화가 전해진다.
1979년 1월 4일, 황룡사 발굴현장에 박정희 당시 대통령이 불시에 방문한 것이다. 대통령이 고고학 발굴에 관심을 보인다는 측면에서는 매우 반가운 일이었다. 그런데 문제는 대통령이 지금의 관점에서 보면 너무나 황당한 지시를 했다는 것이다. “9층 탑을 콘크리트로 복원해보세요.” 아니 신라시대 목탑을 복원하는데 콘크리트라니 이게 무슨 망발이었을까.

그러나 1960~70년까지만 해도 콘크리트는 근대화의 상징처럼 여겨졌다. 광화문도 1968년 철근콘크리트로 복원됐다.
당시는 ‘콘크리트 공법을 쓰면 1000년을 버틴다’느니, ‘목조일 경우 3년 걸릴 공기가 9개월로 앞당겨진다’느니 하는 논리가 통했던 시절이었다. ‘빨리빨리’ 문화가 ‘콘크리트 맹신’을 낳은 것이다.
대통령의 지시로 현장은 일순 ‘갑분싸’로 변했다.
콘크리트라니…. 그나마 남은 목탑의 기초마저 없애버리고 그 자리에 흉물스러운 콘크리트 9층탑이 선다?
발굴단에서는 난색을 표명했다. 그러나 당시 대통령의 뜻을 거역할 이가 없었다. 일사천리로 예산이 반영되고 설계가 검토되는 등 호들갑을 떨었다. 이 ‘콘크리트 9층탑’은 10개월 뒤에 벌어진 10·26 사태로 유야무야 됐다.

■2만5000평에 이른 황룡사의 위용
이런 여담을 남긴 황룡사와 목탑터 발굴은 1976년부터 시작되었다. 절터에 자리잡고 있던 민가 100여호를 매입해서 철거한 뒤 본격 조사를 벌였다. 발굴은 1983년 11월까지 8년간 연인원 7만8000명이 동원된 끝에 일단 마무리됐다.
필자가 확인된 황룡사의 전체규모를 문의했더니 김동하 국립경주문화재연구소 전문위원이 깔끔하게 정리한 자료를 보내주었다.
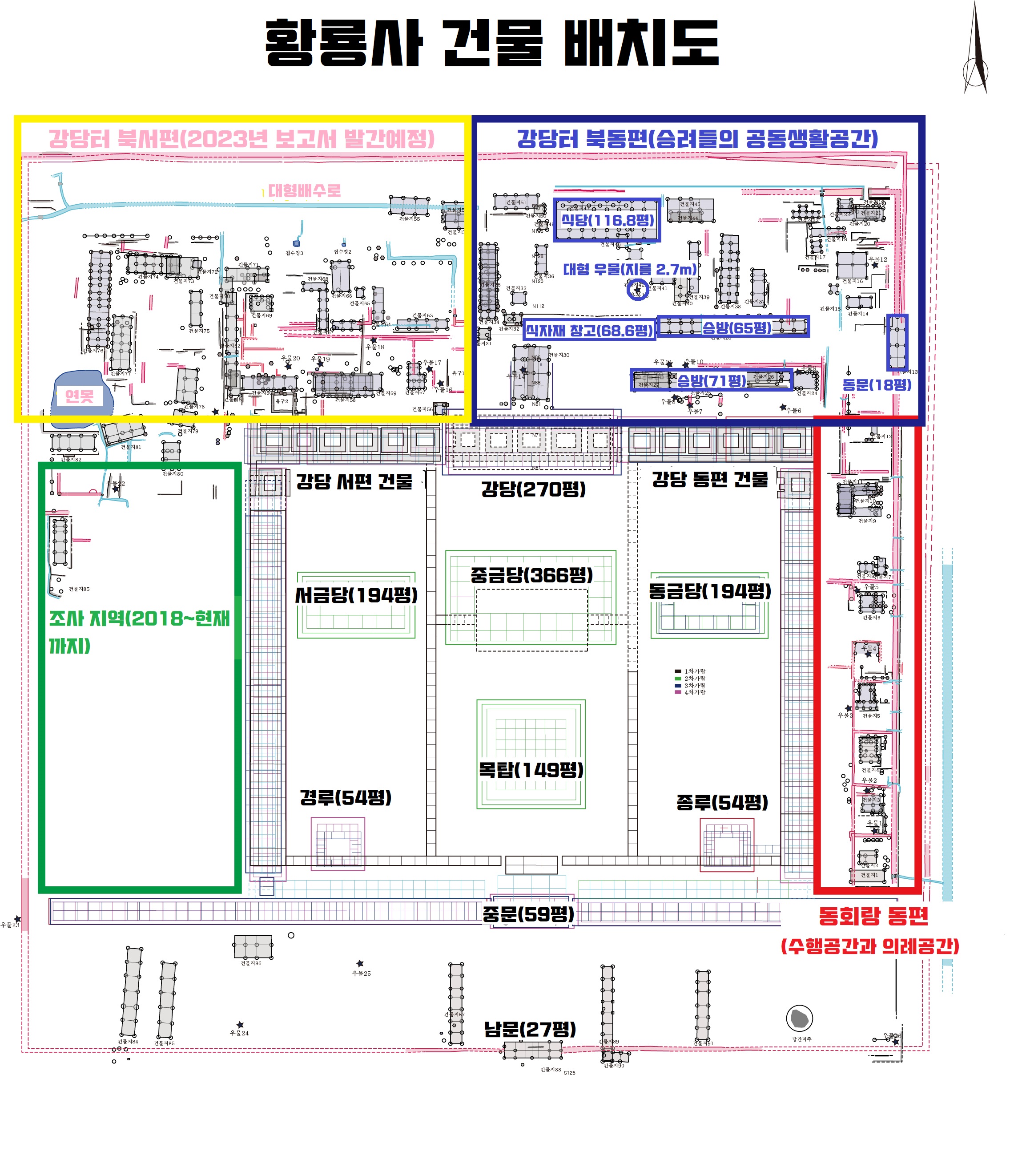
그에 따르면 황룡사는 회랑까지 포함된 중심사역의 규모만 동서는 최대 270m(북쪽은 154m), 남북 186m에 달했다. 면적으로는 8665평이었다. 외곽을 포함하면 황룡사의 전체 규모는 더 엄청났다. 동서 약 281m, 남북 288m이고, 면적은 2만4480평에 이르렀다. 한변이 300m에 가까운 정사각 형태의 사찰규모라니 얼마나 대단한가. 절 내부에 조성된 주요 건물은 어떤가.
장륙상이 들어서있던 중앙 금당(507평)과, 양 옆에 두 보살상을 모신 동서 금당(각 228평)이 확인됐다. 불경을 연구하고 논하는 강당(337평)의 모습도 드러났다. 9층 목탑터에도 건물(260평)이 보였다. 종과 불경을 보관한 ‘종루지·경루지’(96평)도 확인됐다. 사찰의 문인 중문터(102평)도 드러났다.

■황룡사 스님들의 삶은 어땠을까
이와 같은 사찰 중심부 조사와 관련된 발굴조사보고서는 1984년 출간된 바 있다.
그렇다면 회랑과, 승려들의 생활공간까지 포함한 규모가 어떨까.
최근들어 1970~80년대 조사 구역 중 ‘회랑 및 그 외곽(생활공간)’과 관련된 발굴조사 보고서가 잇달아 발간되고 있다.
2019년 발간된 <황룡사 동회랑 동편지구 보고서>는 황룡사 승려들의 개인 수행공간을 확인했다.
즉 동회랑 동편에서 사면이 담장으로 둘러싸인 폐쇄공간(각방의 면적은 평균12평 정도)이 보였다는 것이다.
이 독거공간에서는 승려들이 수행하며 불을 밝히는데 쓰인 90여점에 이르는 등잔과 벼루, 중국제 청자 그릇이 나왔다.

며칠전에는 ‘황룡사 강당 북동편 구역 발굴조사(1981~83)’ 내용을 수록한 발굴조사보고서도 발간됐다.
북동편 지역은 승려들의 생활공간이어서 흥미를 끈 구역이기도 하다. 이곳에서는 동문, 창고, 승방, 식당 등으로 추정되는 건물터 39곳과 우물, 배수로 등이 확인됐다. 사찰 북쪽과 동쪽 경계도 드러났다.
그중 특정 건물터(29호·68.6평)에서는 음식 재료를 담았던 것으로 짐작되는 큰 항아리 조각 50여 개가 출토됐다. 식자재를 저장하는 창고로 판단된다. 또 다른 건물터(25호·71평)는 전돌(벽돌)로 축조한 화로 시설이 나와 승려들의 거주 공간으로 추측된다. 이밖에 규모가 116평(386㎡)에 이르는 대형 건물터(48호)는 식당이었을 가능성이 크다.
최태선 중앙승가대교수는 “초기 불교경전에 따르면 식당은 대중이 모이는 공식장소이고, 세간사를 논의하고 가사를 짓는 등의 수공업을 위한 공간으로 활용되기도 했다”고 전했다.

■황룡사 광장의 실체
최근 황룡사와 관련된 발굴조사에서 특히 관심을 끌고 있는 곳이 있다. 황룡사 남쪽 바깥에서 확인된 광장이다.
이른바 ‘황룡사 광장’은 확인된 구간만 길이 280m×폭 50m 정도인데, 동궁과 월지까지 이어진 것으로 보인다.
그 경우 광장의 규모는 길이 500m×폭 50m(면적 7600평)에 이를 것으로 추정된다. 이곳에서 ‘의봉 4년명(679년) 당 고종의 연호)’ 기와 등이 확인됐다. ‘의봉’은 당 고종(재위 649~683)의 9번째 연호(676~679년)이다. 따라서 ‘의봉4년’은 679년을 가리킨다. 따라서 광장의 최초 조성시기는 통일신라 초기인 7세기 후반으로 추정된다.
광장은 지금도 도로 포장 등에 쓰는 마사토를 바닥에 깔고 그 위에 주먹 크기의 냇돌과 자갈 등을 촘촘히 덮은 구조로 조성했다. 광장보다 더 남쪽에 조성된 주거단지와의 구분을 위해 설치한 담장도 보였다. 280m 정도 확인된 담장은 광장보다 60㎝ 정도 높게 조성됐다. 담장은 기와를 얹은 구조였고, 출입문도 존재했던 것으로 확인됐다.

발굴을 담당한 신라문화유산연구원의 이민형 연구원은 “너비 1.5m의 담장은 동궁(월지)까지 500m 정도 연결되었을 것으로 추정된다”고 밝혔다.
‘황룡사 광장’의 규모는 도로를 제외한 광화문 광장(약 600m×60m) 보다는 약간 작다. 그러나 1300~1400년 전의 서라벌에 조성된 광장이라는 것을 감안하면 엄청난 규모라 할 수 있다.
그렇다면 ‘황룡사 광장’는 어떻게 활용됐을까. 발굴자와 연구자들은 광화문 광장처럼 서라벌 주민들의 집회 공간은 아니었을 가능성이 크다. 외부 주택단지(가옥군)와 광장을 구별하는 장벽(담장)을 두었기 때문에 100% 열린 공간은 아니었다.
이곳에서는 신라의 왕과 귀족들이 주관하고 참여하는 각종 이벤트가 열렸을 것이다. <삼국사기> 등에 국가대사가 있을 때 임금들이 친히 황룡사에 나와 대규모 법회(백고좌회)를 열고, 연등회에도 참석했다는 기사가 보인다.

그 행사장이 ‘황룡사 광장’이었을 가능성이 크다. 신라의 왕과 왕·귀족이 동궁과 월지와 연결된 문을 통해 황룡사 광장으로 입장했을 것이다.
필자는 윤석렬 대통령의 후보시절 공약 가운데 ‘황룡사와 익산 미륵사의 복원’이 포함되어 있는 것을 보고 깜짝 놀랐다. 고증하기 어려운 두 문화유산을 어떻게 복원하겠다는 건지….
그러나 문화재청의 의견에 따라 공약의 비현실성을 뒤늦게나마 깨닫고 ‘3D 복원’으로 대체했다는 이야기를 듣고 가슴을 쓸어내렸다. 필자는 경주에 갈 때면 광활한 분지에 터만 남은 황룡사의 흔적을 밟고 그냥 거닐어본다.
그렇게 걸으면서 1300~1400년 전 삼국통일의 상징이었던, 혹은 서라벌의 랜드마크였던 황룡사와 9층 목탑을 상상해본다. 만약 거기에 콘크리트 흉물이 섰다면 어쩔 뻔 했나. 생각할수록 끔찍하다. 경향신문 히스토리텔러
(이 기사를 위해 김동하 국립경주문화재연구소 전문위원, 이민형 신라문화유산연구원 연구원, 최태선 중앙승가대 교수, 박윤정 문화재청 발굴제도과장 등이 도움말과 자료를 제공해주었습니다.)
'흔적의 역사' 카테고리의 다른 글
| 도굴꾼은 상상도 못했다…목관 밑 '보물상자'에 담긴 2100년전의 삶 (2) | 2022.06.17 |
|---|---|
| '가림성 사랑나무' 너머로 읽은 백제 독립운동사 (51) | 2022.06.03 |
| 숙종의 피난처, 북한산성에 왜 금괴 매장설이 퍼졌을까 (1) | 2022.05.07 |
| '744살 청와대 주목', 가소롭게 바라봤을 영욕의 역사 (0) | 2022.04.09 |
| "일러줄거야. 네 남편에게"…<청구영언>의 19금 노래가 보물 됐네 (1) | 2022.03.26 |